03
CONCEPT DIRECTION
Education and Creativity Converge
BUILD-UP SIZE
655 sf
Stepping into Genius Horizon Education Centre feels like entering a world where education and creativity converge. More than just a tuition space, it’s an environment designed to spark curiosity, nurture imagination, and make learning a vibrant journey.
From the very first glance, the façade sets the tone — a warm composition of wood textures paired with modern glass windows that invite both parents and students to peek inside. The front showcases thoughtful details, including a Read Zone lined with colourful books, instantly communicating that this is a place where knowledge is not only taught but celebrated. The design doesn’t just function as an entrance; it’s an invitation to explore, learn, and grow.
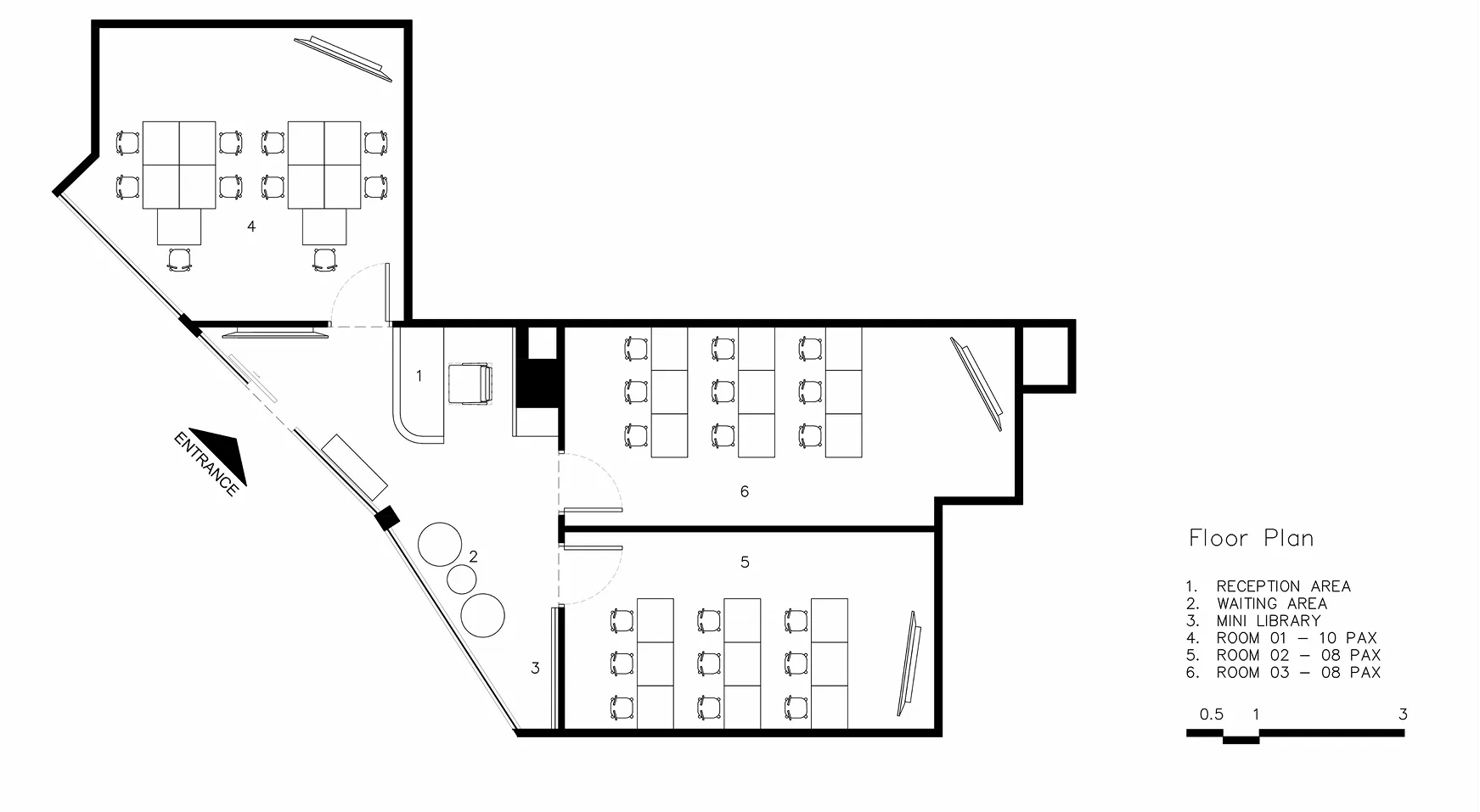
Inside, the story of Genius Horizon unfolds further. The reception area greets visitors with a clean, modern desk in a bold plum tone, complemented by natural wood finishes that radiate warmth and trust. Around it, the walls become a canvas of inspiration, carrying encouraging words like observe, explore, learn — gentle reminders of the centre’s philosophy.
The classrooms, named after the four seasons — autumn, summer, winter — bring an imaginative twist to traditional learning spaces. Each coloured door introduces a new dimension of exploration, symbolizing the ever-changing cycles of growth, discovery, and renewal. Together, they create a rhythm that makes education feel like an ongoing adventure.
Even the small corners are carefully curated. The Read Zone, highlighted by neatly displayed books under soft lighting, transforms waiting time into a moment of enrichment. Paired with cosy seating and simple décor, it offers a calm retreat that inspires young learners to open a book and dive into a story.
In essence, Genius Horizon Education Centre is more than a learning facility. It is a thoughtfully crafted environment where design and education merge — a space where every detail, from colours to textures, works together to shape a holistic, inspiring, and future-ready learning journey.
Lot 01-16 & 01-17, >MK/TS 55 Siglap RD, Siglap Centre Singapore 455871
Genius Horizon Education Centre



























