12
CONCEPT DIRECTION
The Tailored Realm
BUILD-UP SIZE
4,070 sf
A space where masculinity is not just a trait, but an atmosphere—bold, powerful, and captivating. This concept exudes an air of enigmatic allure, inviting curiosity while commanding respect. It blends sleek, masculine elements with rich textures and refined details, creating an environment that is both sophisticated and intriguing. The design draws heavy inspiration from French shop aesthetics, with elements like ornate canopies, cornices, window displays, and hanging signage. The deep blue façade with French-style details stands out from afar, drawing attention and evoking a sense of exclusivity.
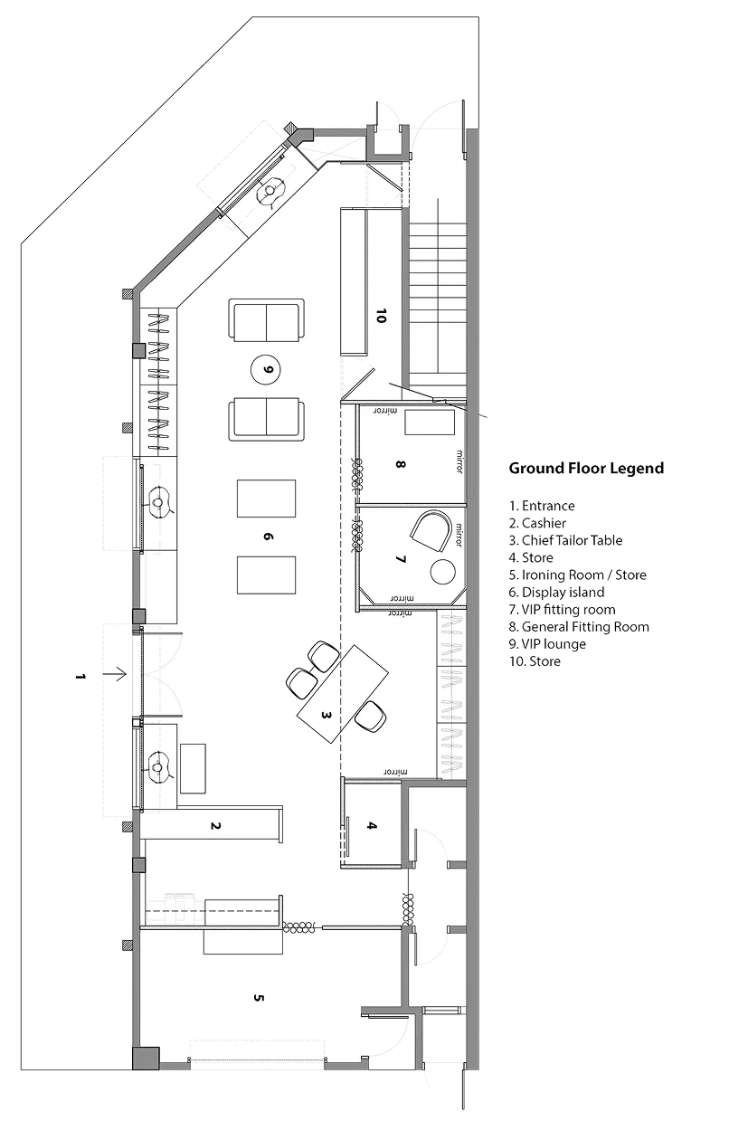
The walkway, finished in classic black and white checkered tiles, complements the sophisticated blue canopies on every window, adding prestige and character. Classical design elements, such as benches and planter boxes, enhance the overall refined feel.Upon entering, customers are greeted by herringbone tiles and webbing-patterned floors, adding an exquisite touch to the space. The center piece is a centralized tailor’s table, aligned with the floor design, symbolizing the brand’s core. With a marble top, timber legs, and a rustic metal finish, the table exudes a masculine and gentlemanly vibe, accentuated by blue checkered stools.
Display cabinets are meticulously crafted, featuring diagonal frame cuts, bronze finishes, and fluted panels for added texture. Two island displays at the center showcase accessories such as ties, cufflinks, and belts, while drawers with glass doors allow customers to view items up close. A private seating area provides customers with a relaxed space to select materials for their attire, all under a long, elegant chandelier.
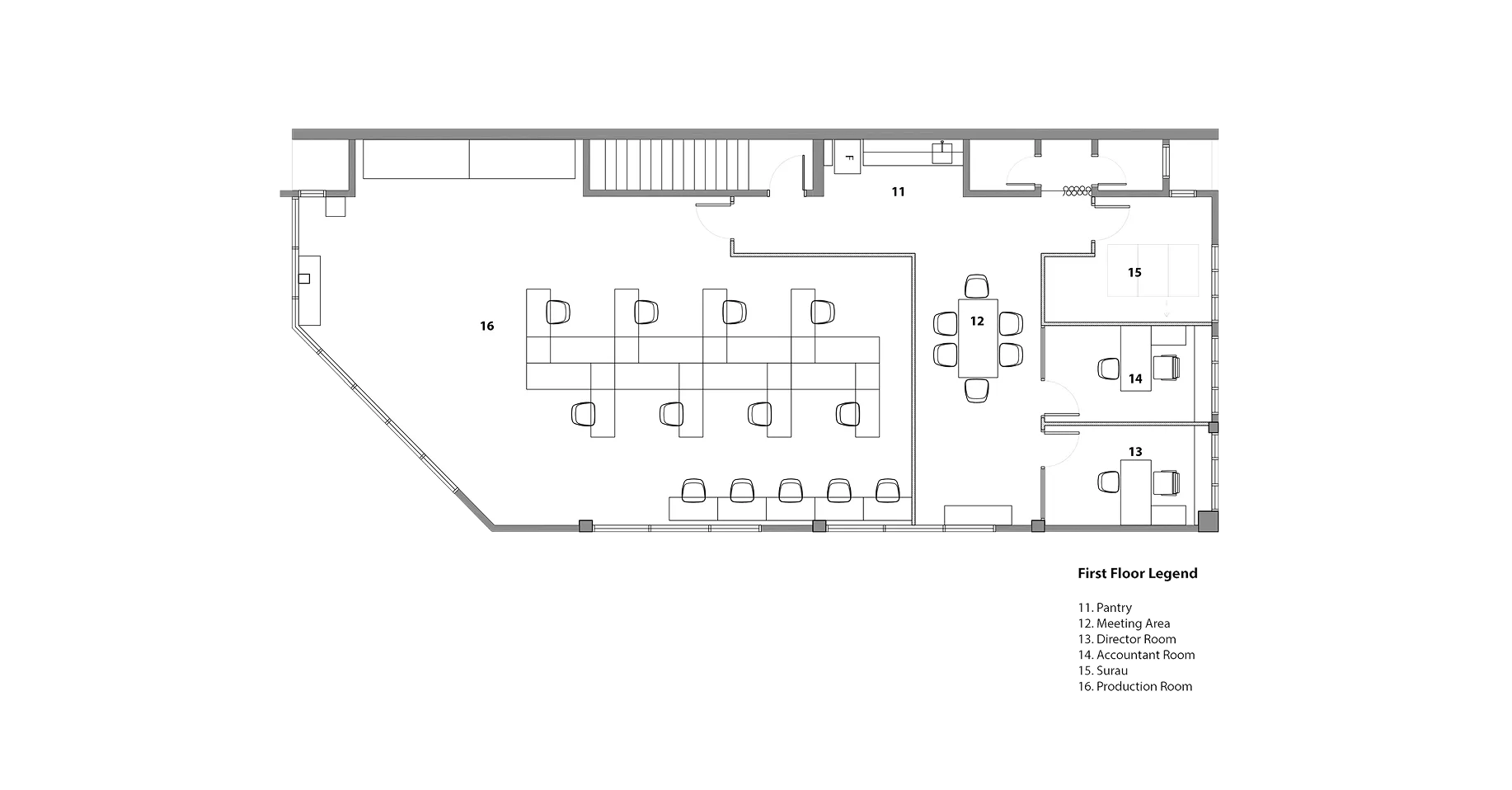
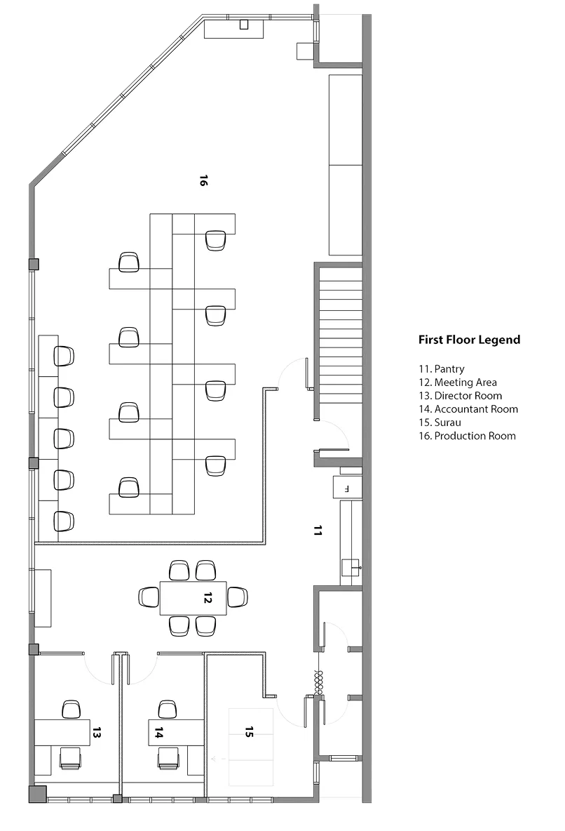
Upstairs, the production room and offices feature rich blue tones with timber beading and herringbone wooden floors. Glass panel doors create a sense of openness, ensuring the space feels spacious and refined.
Taman Bukit Senadi, Iskandar Puteri, Johor bahru, Malaysia
Bespoke Clothing by Ozz

























